Caudete continúa dando pasos en la mejora de sus instalaciones municipales. Una de las demandas históricas de los caudetanos, la habilitación de una cocina en el espacio conocido como «La Sala», ya es una realidad tras años de trabajo. Este nuevo equipamiento permite la celebración de eventos con servicio de catering de forma cómoda y segura, respondiendo así a una necesidad largamente planteada por asociaciones y colectivos locales.
El proyecto, previsto para ejecutarse durante el presente mandato, vio finalmente la luz el pasado mes de febrero. La primera entidad en hacer uso de esta nueva infraestructura fue la Comparsa de Guerreros, que celebró en el recinto su tradicional Cena de Hermandad, inaugurando así un espacio llamado a convertirse en punto de encuentro social y festero.
Desde el Ayuntamiento destacan que esta actuación es fruto del compromiso adquirido con los vecinos de Caudete, atendiendo a sus propuestas y mejorando los servicios disponibles para el desarrollo de actividades culturales y sociales.
Almacén de material deportivo
En paralelo, el Consistorio continúa trabajando en nuevas mejoras para el complejo municipal. En este sentido, los concejales de Deportes y de Obras, Pilar Egea y Moisés López, han presentado el proyecto para la construcción de un nuevo almacén de material deportivo, una infraestructura considerada «necesaria y prioritaria».
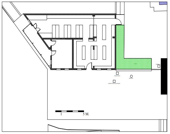
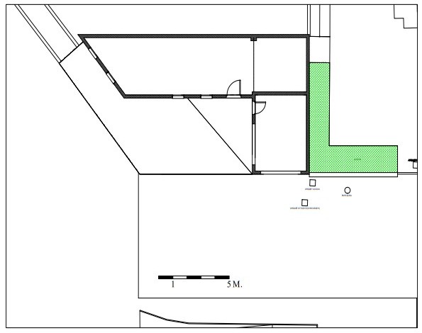
Hasta ahora, la zona de la actual cocina y espacios colindantes venía utilizándose como área de almacenamiento, especialmente para el equipamiento de la Piscina de Verano y material destinado a diversas disciplinas deportivas. Esta situación hacía imprescindible la creación de un espacio específico que permita una mejor organización y conservación de los recursos.
El proyecto, redactado por los técnicos municipales, cuenta con un presupuesto de 24.990,11 euros, cantidad que ya ha sido incluida en el Presupuesto Municipal de 2026. Una vez se produzca su aprobación definitiva, se procederá a iniciar el proceso de licitación. De hecho, el expediente administrativo ya se encuentra en marcha y está pendiente de su aprobación por parte de la Junta de Gobierno Local.
El futuro almacén estará ubicado junto a la Piscina de Verano, con acceso directo desde esta instalación para facilitar su uso. Además, se situará junto a la actual construcción existente del almacén y el recinto del C.D. Caudetano, lo que permitirá centralizar y optimizar los recursos deportivos municipales.





